Vocational School Rottenburg

- locationRottenburg
- year2025
- clientLandratsamt Tübingen
- BGF2.200 m2
- BRI8.600 m3

Extension of a school building
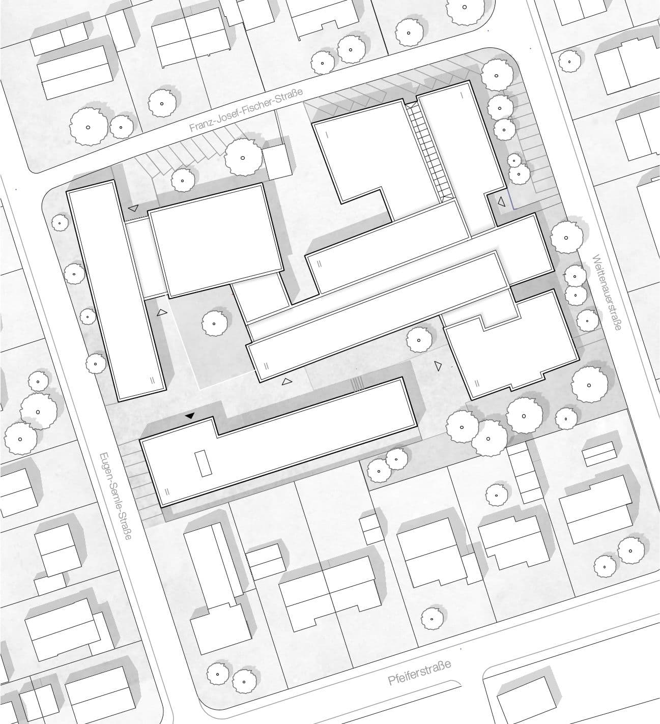
The site for the expansion of the vocational school in
Rottenburg is located in the middle of an urban area that has "grown" over the years. Under the topic "Achieving more together", the site, which is limited by the the existing buildings, is supplemented in a simple and meaningful way with a single oblong structure.


The extension is divided into two floors and a basement.
basement. The ground floor contains the foyer, parts of the all-day area
and classrooms are located on the ground floor. On the upper floor
further classrooms and recreational areas for students are housed. The teachers' areas, library and other and other ancillary rooms are oriented towards an elongated courtyard, which allows adequate lighting and ventilation.
The foyer, which spans the entire floor, connects these areas and allows natural sunlight to penetrate deep into the building.
Due to the cantilevers on the upper floor, the footprint on the ground floor can be reduced in favour of a more spacious entrance situation and an extended break area. The existing lower open spaces in the easternarea could be preserved as far as possible. The existing lower free spaces in the eastern eastern area can be preserved to a large extent.

