Erweiterung Berufsschule Rottenburg

- locationRottenburg
- year2025
- clientLandratsamt Tübingen
- BGF2.200 m2
- BRI8.600 m3
Erweiterung eines Schulbaus
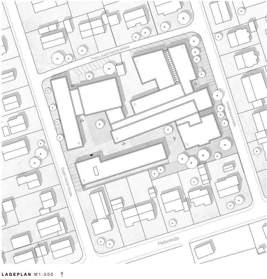
Das Grundstück für die Erweiterung der beruflichen Schule in
Rottenburg befindet sich inmitten eines städtisch geprägten
und über die Jahre „gewachsenen“ Bebauungsfeldes. Unter
dem Thema „Gemeinsam mehr erreichen“ wird die durch die
vorhandene Bebauung eingeschränkte Sitaution mit einem
langgestreckten Baukörper sinnfällig und auf einfache Weise
ergänzt.


Die Erweiterung gliedert sich in zwei Geschosse sowie einem
Untergeschoß. Im Erdgeschoß befinden sich Foyer, Teile des
Ganztagesbereiches, sowie Klassenräume. Im Obergeschoß
befinden sich weitere Klassenräume und Aufenthaltsbereiche
für Schüler. Die Lehrerbereiche, Bibliothek und sonstige
Nebenräume orientieren sich zu einem langgestreckten
Tiefhof, der eine ausreichende Belichtung und Belüftung
zulässt. Das geschossübergreifende Foyer verbindet diese
Nutzungen miteinander und lässt natürliches Sonnenlicht tief
ins Gebäude fallen.


Durch die Auskragungen im Obergeschoß kann der bauliche
Fußabdruck im Erdgeschoß reduziert werden zugunsten einer
grosszügigen Eingangssituation und einer erweiterten
Pausenfläche. Die vorhanden tieferliegenden Freiräume im
östlichen Bereich können weitestgehend erhalten bleiben.
