University For Technical Studies And Economics Aalen

- locationAalen
- year2006
- clientVBA Schwäbisch Gmünd
- BGF15.960 m2
- BRI59.200 m3

Three structures for campus Aalen
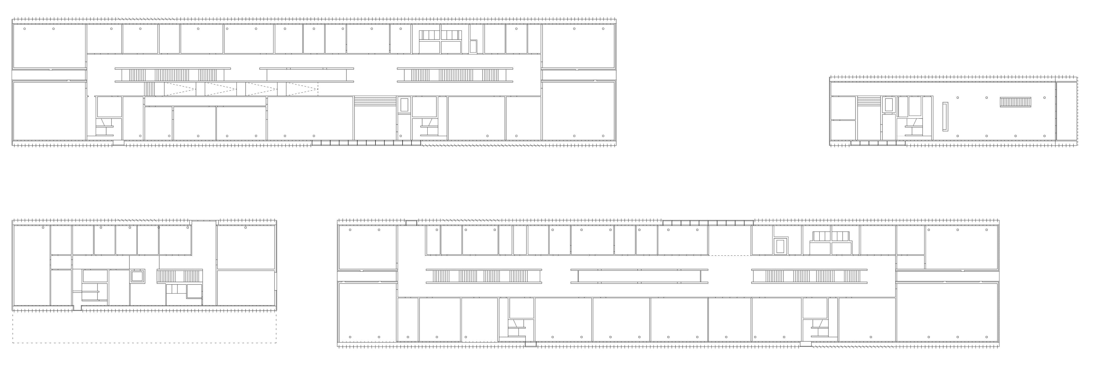
The three large timber structures comprising this complex stand on a west-facing, gently sloping site outside the town of Aalen in eastern Württemberg. The cubic forms house spaces for various courses offered by the University for Technical Studies and Economics: mechatronics, electronics, optics and information technology.


Three elongated volumes, two larger and one smaller, were laid out parallel to each other on the sloping ground. Extending from the central campus square is a tree-lined access route, which forms the heart of the complex and lends it a strong urban accent. This concourse may be seen as as the main artery of a small "city of science" that will expand in the course of time.
What from afar seems to be a composition of contrasting light and dark areas, turns out to be a dense cladding of timber strips that completely enclose the fully glazed building. The facade elements, constructed in larch, establish a link with the nearby forest. The appearance of the facade changes with the position of the sun.




In a closed state, the untreated louvred elements have a bright, reddish, shimmering surface. When the pivoting shutters are mechanically opened room by room, the darker areas of the glass to the rear are revealed,
and the projecting edges of the shutters establish a pronounced sense of relief. The timber-clad narrower end faces of the buildings are completely closed. Here, a vertical recess indicates the internal structure.Nothing should distract attention from the calm, self-contained, large-scale forms.


