KörberHaus Kultur- und Begegnungszentrum Hamburg-Bergedorf

- locationHamburg-Bergedorf
- year2022
- clientSprinkenhof GmbH
- BGF7.000 m2
- BRI33.000 m3
- Partnermo Architekten Ingenieure Hamburg
Schaub & Partner Architekten Hamburg


Kultur- und Begegnungszentrum Hamburg Bergedorf
Im historischen Hafenviertel mitten in Bergedorf liegt das neue KörberHaus. Die Initiative des Bezirks Bergedorf und der Körber-Stiftung für ein kommunales Kultur- und Begegnungszentrum startete 2016, der Architekturwettbewerb wurde 2017 entschieden. Zum internationalen Tag des Ehrenamts konnte im Dezember 2022 das Haus feierlich eröffnet werden.
Der Neubau platziert sich leicht asymmetrisch auf dem von drei Uferkanten begrenzten Grundstück.
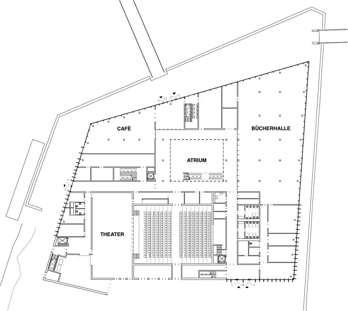
Von weitem erkennt man den Haupteingang, der Weg führt direkt über die grüne Insel und den Steg auf den Vorplatz. Die großzügige Verglasung gibt den Blick ins Innere frei und unterstreicht die Idee des offenen Hauses. Außen prägen die warmrötlichen Kupferlamellen die Erscheinung und integrieren es in die durch Backsteinbauten bestimmte Nachbarschaft. Im Inneren des lichtdurchfluteten Atriums gleitet der Blick zum zentralen Infopoint, in das Café, die Bücherhallen und den Körbersaal im 1. Obergeschoss. Im ersten Obergeschoss befinden sich die Räume des Körber-Stiftung, sowie im 2. OG die Räume des Bezirks.


Vom hellen, freundlich zurückhaltend gestalteten Atrium erschließen sich als besondere Räume das Theater und der Körbersaal. Das LichtwarkTheater als Black-Box fasst 458 Sitzplätze mit 300 Plätzen im Parkett und 158 Plätzen auf der Empore. Die Wände des Theaters und des Körbersaals sind mit Stoffpaneelen bekleidet, um eine freundliche Atmosphäre mit guter Raumakustik zu bieten.
Als übergreifendes architektonisches Thema verbinden sichdie vertikalen Strukturen der Fassade mit den vertikalen Stahlgeländern und Wandgestaltungen im Atrium und Freiraum. Die Pfosten-Riegelfassade aus Lärchenholz ergänzt sich harmonisch mit den Parkettfußböden der Veranstaltungs- und Büroflächen. Außen gliedern sich die Fassaden in drei horizontal geschichtete Geschossbänder, die mit offenen und geschlossenen Bereichen auf die dahinter liegenden Nutzungen reagieren. Durch die Lochung der vertikalen vorgehängten Lamellen wird die Transparenz und Feinheit der Fassade betont. Variierende Abstände der feststehenden Kupferlamellen beleben das Fassadenbild, wobei die Verdichtung an den Gebäudeecken im Sommer die Aufheizung der Eckräume begrenzt.




Die Veranstaltungs- und Bürobereiche des Gebäudes sind in leichter Stahlbeton-Skelettbauweise, die Wände des Theaters aus Schallschutzgründen massiv in Stahlbeton erstellt und auf ca. 230 Pfählen gegründet. An den Stirnseiten der Geschossdecken verankerte Schwerter leiten die Lasten aus den feststehenden geschosshohen Kupferlamellen über eine Zangenkonstruktion die Decken ein.
Die Möglichkeit der Nachtauskühlung und die vollständige Dachbegrünung reduzieren die Wärmelasten im Sommer. Durch die geschickte Anordnung der Fluchtwege ist keine Sprinkleranlage erforderlich und die natürliche Entrauchung des Theaters und des Zuschauerraums erfolgt über RWA-Anlagen.


