Maritimes Sicherheitszentrum Cuxhaven

- locationCuxhaven
- year2016
- clientStaatliches Baumanagement Elbe-Weser
- BGF3.200 m2
- PartnerGraf Ingenieure
Bayer Bauphysik Ingenieurgesellschaft mbH
Wenzel + Wenzel GmbH
Paul+Gampe+Partner GmbH
Maritimes Sicherheitszentrum
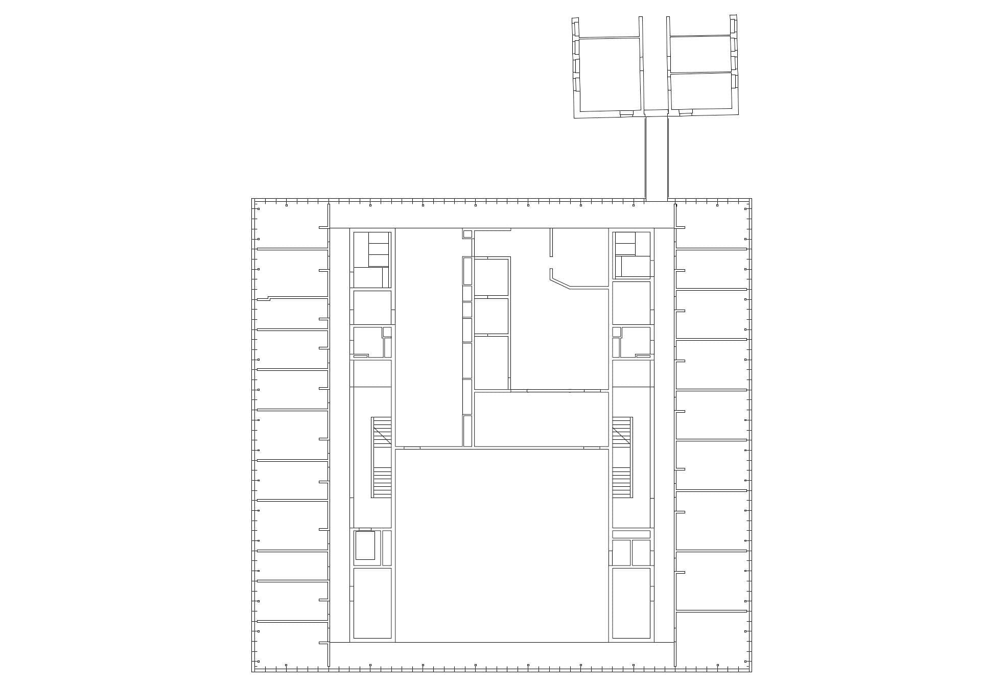
Das Maritime Sicherheitszentrum steht an der Ecke Zollkaje und Woltmankaje als viergeschossiger solitärer Baukörper. Das Quadrat als stereometrische Grundform vereinigt die wichtige Bedeutung des MSZ mit dessen funktionalen Anforderungen. Ein Sockel nimmt den Eingangsbereich und die Servicefunktionen auf und reduziert den Fußabdruck des MSZ auf ein Minimum.


Im auskragenden Bauteil sind die Nutzräume mit dem zentralen Lagezentrum angeordnet. Durch diese programmatische Anordnung vereinen sich die Belange der „äußeren Sicherheit“ mit dem gestalterischen Konzept.
Das Programm schichtet sich in zwei Nutzgeschosse und zwei Service- bzw. Technikgeschosse. Im Sockel an der Woltmankaje ist der Pförtner und der Hauptzugang vorgesehen, welcher sich nach Süden und nach Norden orientiert. Hier befinden sich auch die Umkleiden der Bediensteten. Das Zugangsniveau liegt auf etwa 5.30 m über NN. Im Zwischengeschoss sind die Räume der Haustechnik, Elektro/Informationstechnik und Lüftung angeordnet.
Das MSZ gliedert sich in den zweigeschossigen Bereich mit Lageraum AAO, Sonderlageraum 1 und Havariekommando.
Die natürliche Belichtung dieser Räume ist durch verschattbare Oberlichter gewährleistet. Diese perforieren punktförmig die weitgespannte Stahlbetondecke und sind durch aussenliegende Sonnenschutzlamellen verschattbar. Beidseitig flankieren die Büros die Leitstellenräume. Das MSZ ist auf der dritten Etage an das WSA Dienstgebäude angeschlossen. Die Büros der Leitstelle sind dem Lagezentrum direkt zugeordnet und als zusammenhängender Sicherheitsbereich ausgewiesen
