Fakultät für Gestaltung Pforzheim

- locationPforzheim
- year2010
- clientHBA Pforzheim
- BGF1.250 m2
- BRI5.300 m3

Anbau Fakultätsgebäude
Die Fakultät für Gestaltung der Hochschule Pforzheim befindet sich im denkmalgeschützten Jugendstilgebäude der ehemaligen Großherzoglichen Kunstgewerbeschule in der Holzgartenstraße 36. Das bereits zur Entstehungszeit unvollendet gebliebe Ensemble aus dem Jahre 1922 wird mit einem kleinen, städtischen Turm vollendet. Der schlichte Neubau ergänzt selbstbewusst das Jugendstilgebäude.



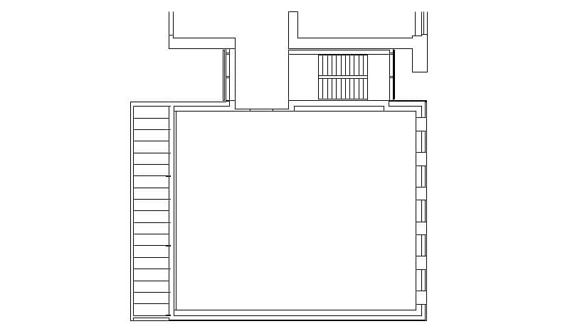
Es galt die fein gegliederten Fassaden des Bestandes zu ergänzen und mit dem nach Süden orientierten Gartenhof zu verknüpfen. Die Geschlossenheit und Schwere der Straßenfassaden integrieren sich durch die großformatigen Sandsteinplatten in die bestehende Materialität des Altbaus. Kleine quadratische Kastenfenster gliedern die strenge Lochfassade.
Die abschließende Ebene zum Hof aus feinem Maschendraht als zweite filigrane Schicht bricht und vermittelt zwischen der glatten harten Glasfassade und der gewünschten Durchlässigkeit der Räume zum Hof. Überraschende Ausblicke öffnen die neuen Räume zur Stadt. Diese zwei unterschiedlichen Seiten übersetzt der Neubau die Architektur des angrenzenden Jugendstilbaus in seinem Verhältnis von Schwere und Leichtigkeit, Geschlossenheit und Öffnung in eine neue Sprache.


