Fachober- und Berufsoberschule Memmingen

- locationMemmingen
- year2005
- clientStadt Memmingen HBA Memmingen
- BGF6.500 m2
- BRI27.000 m3
- PartnerArchitekt Erwin Klose

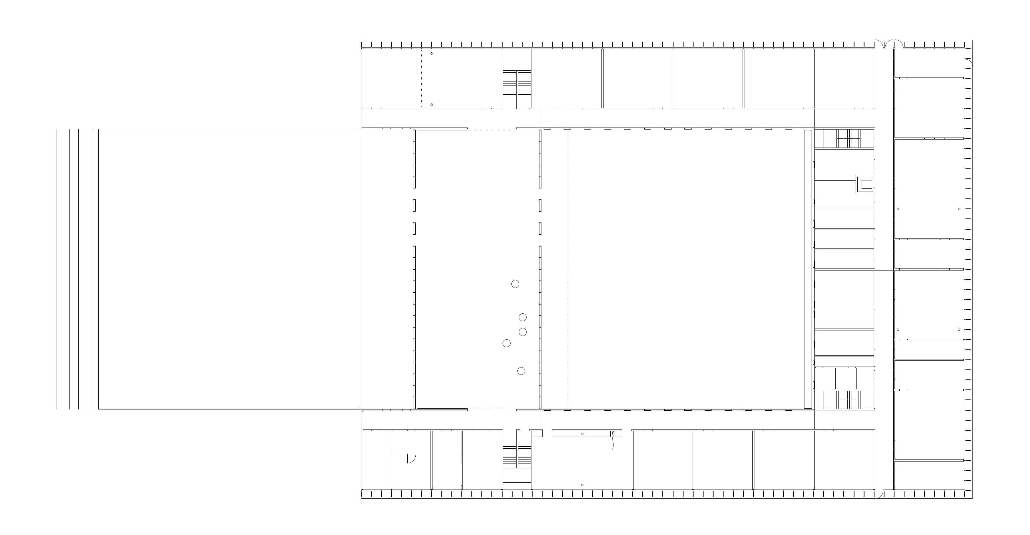
Schulbau
Wie ein übergroßes Möbel steht der zweigeschossige Schulbau mitten auf der grünen Wiese. Mit Neugier nähert man sich dem flachen Gebäude mit der großen weiten Öffnung der Halle. Ein breiter, weit zurückgesetzter Einschnitt mit raumhoher Verglasung bestimmt die Fassade. Auffällig ist der Einblick in das darüber sichtbar gelassene 1,20m hohe, filigrane Dachtragwerk.


Die Sichtverbindung vom Vorplatz durch die Halle in den Innenhof macht schnell deutlich, dass es sich hier nicht – wie vielleicht zu vermuten wäre – um ein kompaktes Gebäude handelt, sondern um eine U-förmige Anlage, die im Raum der gläsernen Aula einen repräsentativen Abschluss findet. Zwanzig Klassenräume, zehn Fachklassen und die Verwaltung lassen sich in dieser einfachen Grundform klar organisieren.
Die Räume, in denen sich Schüler und Lehrer am längsten aufhalten, sind nach Südosten beziehungsweise Südwesten mit Blick in die Landschaft orientiert. Werkstätten, Fachklassen, Nebenräume und die Treppe bilden die Basis des zweibündig angelegten „U“. Das Bild des Möbels bekommt eine zusätzliche Bedeutung durch die dreiseitig umlaufenden, geschosshohen Klappläden aus hochwertiger Douglasie.




Wie Geheimfächer lassen sich die doppelflügeligen Läden öffnen und schließen. Sie werden je nach Bedarf manuell bedient und mit Hilfe von kräftigen Sturmhaken arretiert.
Das immer wechselnde Spiel der mal offenen, mal geschlossenen Drehläden und die Reihung der immer gleichen Formate verleihen dem Gebäude eine überraschende Tiefenwirkung.


